垃圾吊运行中情况。
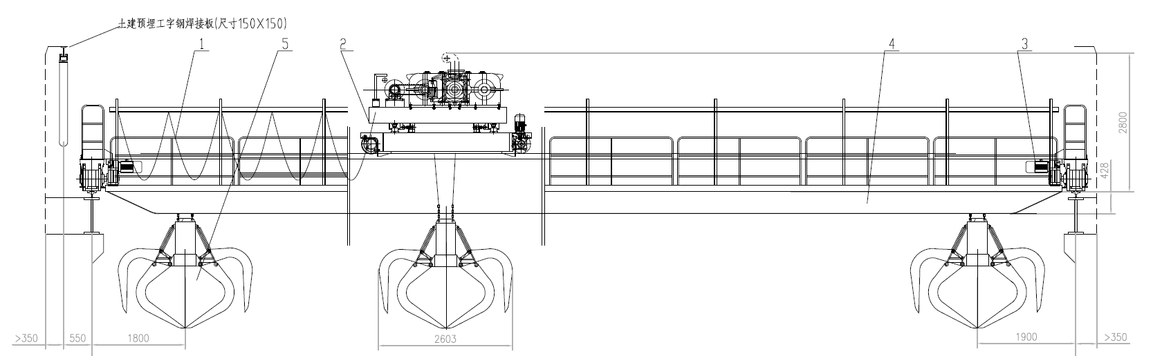
垃圾抓斗式起重机俗称垃圾吊,是各种垃圾焚烧发电厂供料系统的核心设备,位于垃圾储存坑的上方,主要承担对垃圾的取料、搬运、投料、称重计量等作业。
由于现场使用环境恶劣等因素,对垃圾吊整体质量要求非常高,我公司生产的垃圾抓斗式起重机能执行严格的搬运及投料作业,确保垃圾焚烧发电厂的正常作业,可以根据配置实现起重机的手动、半自动运行;实现一键投料、一键泊车。

公司产品广销全国多个省市地区,产品获得广大客户好评
秉持“专一、专注”的精神,提供匠心产品,服务全球千万用户
实力雄厚 · 设备优良 · 质量保证 · 用户至上 · 合作共赢
16668282281
扫一扫 关注我们